Maison 4 pièces de 123m² avec terrain piscinable de 221m² au sein d’un domaine de 4000m² idéalement situé sur Crépieux à 150 mètres de Caluire.
Située au calme complet dans une ancienne tannerie réhabilitée en 2021, cette maison sur 2 niveaux de 123m² est vendue sous forme de plateau. Elle offre ainsi de nombreuses possibilités d’aménagements vous permettant de créer votre espace sur mesure.
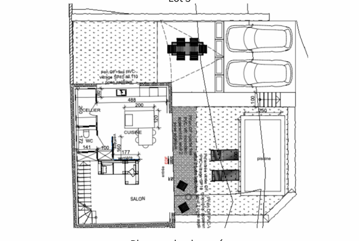
Vous trouverez dans l’annonce le plan d’un projet d’aménagement intérieur idéal pour une maison familiale 4 pièces avec :
– Un premier niveau de 64m² composé d’une pièce de vie de 50m² avec cuisine ouverte, un cellier et des WC séparés.
– Un second niveau de 59m² composé de 3 chambres de 12 à 14m² dont une suite parentale, une salle de bain, ainsi qu’un WC séparé.
– Un terrain paysagé de 221m² pouvant accueillir une piscine.
Les travaux de gros oeuvres ont déjà été réalisés (raccordement au réseau collectif des eaux usées, eaux pluviales, électricité, fibre, etc.) et les menuiseries installées (double vitrage aluminium, Vélux et volets électriques).
Cela vous permettra donc de vous concentrer uniquement sur les travaux intérieurs 100% personnalisables.
Située sur Crépieux à la limite de Caluire-et-Cuire, dans un quartier résidentiel et à proximité des commodités :
– Pharmacie et supérette à 700m.
– Ecole primaire à 900m.
– Ecole Ombrosa à moins de 5km
– Bus C5 (direction Jean Macé), 59 (direction de Cordeliers), et S5 (direction Caluire – Bords de Saône) à 500m.
– Accès périphérique autoroute Genève, Paris, Marseille à 3 minutes.
Pour plus d’information, prenez contact avec notre consultante Maéva Lhomme, agent commercial immatriculé au RSAC de Lyon sous le numéro 939 314 399.
Honoraires d’agence à la charge exclusive du vendeur.
Non soumis au DPE.
Les informations sur les risques auxquels ce bien est exposé sont disponibles sur le site Géorisques (C. envir., art. R. 125-25, I).









