Caluire-et-Cuire entre Vernay et Le Bourg, lumineux T3/T4 de 72m² traversant E/O au sein d’une résidence familiale, bien entretenue, fermée et sécurisée avec de beaux espaces verts.
Idéal résidence principale ou investisseur / Non soumis à l’encadrement des loyers.
Ce bien est déjà équipé d’un double vitrage PVC neuf, présente un DPE classé D et la copropriété vient de voter sa rénovation énergétique : ravalement des façades avec isolation par l’extérieur, isolation des planchers bas des caves, installation d’une ventilation hygroréglable, etc.
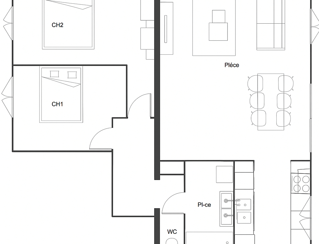
Cet appartement bien agencé et sans perte d’espace se compose :
– d’une pièce de vie de 29m².
– d’une cuisine ouverte et entièrement équipée.
– de deux chambres de 10 et 14m².
– d’une salle de bains avec emplacement lave-linge/sèche linge. WC séparés.
Actuellement agencé en T3, cet appartement est facilement transformable en T4 par le bais du séjour double existant.
Cet appartement dispose d’une cave en sous-sol inclus dans le prix, ainsi qu’un accès au parking collectif et au parc de la copropriété. Possibilité d’acquérir un garage au sein de la copropriété.
Emplacement de qualité à proximité immédiate de toutes les commodités :
– Proximité immédiate de Lyon en transports en commun avec lignes de bus à 200 mètres : Bus 9 (Direction Foch, Hôtel de Ville…), Bus 33 (Direction Croix-Rousse), Bus 38 (Direction Gare Part-Dieu), Bus 77 (Direction Fontaines-Saint-Martin)…
– Commerces essentiels (boulangerie, supermarché, fleuriste, etc.) à deux pas.
– Ecoles maternelles et élémentaires, collège et lycée à moins de 10 minutes à pied.
Bien soumis au régime de la copropriété. Pas de procédure en cours.
Charges mensuelles : 205 euros comprenant les charges de copropriétés, de bâtiment, de gardiennage, de chauffage et d’eau froide.
Montant estimé des dépenses annuelles d’énergie pour un usage standard : entre 820 euros et 1150 euros par an. Prix moyens des énergies indexés sur l’année 2021 (abonnements compris).
« Les informations sur les risques auxquels ce bien est exposé sont disponibles sur le site Géorisques (C. envir., art. R. 125-25, I).
Pour plus d’informations, photos et plans, prenez contact avec notre consultante Alice Goedart, agent commercial, immatriculée au RSAC de Lyon sous le numéro 999 654 387.
Copropriété de 152 lots (Pas de procédure en cours).
Charges annuelles : 2460 euros.



